Belgrano - CABA
Arcos 1290
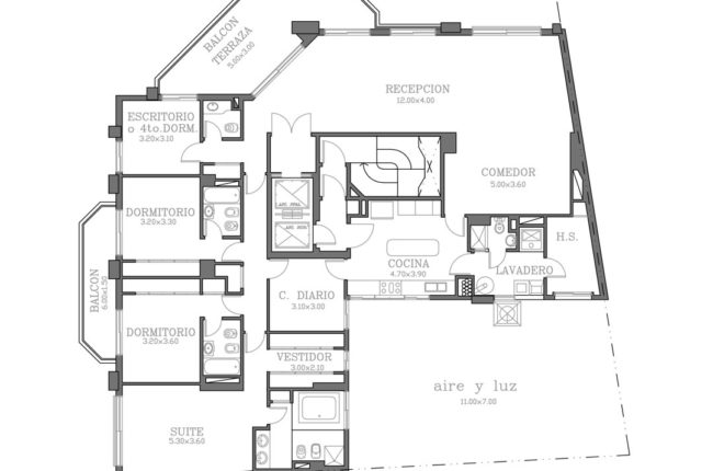
El edificio se desarrolla en 13 pisos, planta baja, y 2 subsuelos. Del 1o al 12o piso, cuenta con una unidad funcional por piso, que consiste en Living-comedor, cocina, c. diario, toilette, 3dormitorios todos en suite, escritorio, lavadero, y dependencias de servicio.
Además de ello cada unidad tiene baulera y 2 cocheras a las que se accede por montacoches, totalizando una superficie propia de 280 m2 aproximadamente. En el piso 13o se ubican las bauleras y la portería,
El edificio se desarrolla en 13 pisos, planta baja, y 2 subsuelos. Del 1o al 12o piso, cuenta con una unidad funcional por piso, que consiste en Living-comedor, cocina, c. diario, toilette, 3dormitorios todos en suite, escritorio, lavadero, y dependencias de servicio.
Además de ello cada unidad tiene baulera y 2 cocheras a las que se accede por montacoches, totalizando una superficie propia de 280 m2 aproximadamente. En el piso 13o se ubican las bauleras y la portería, mientras que en planta baja tiene un salón de fiestas.
El edificio cuenta con grupo electrógeno.
Vivienda Multifamiliar
Superficie 4.800 m2
Año 1991
