Las Cañitas - CABA
Av. Olleros 1836
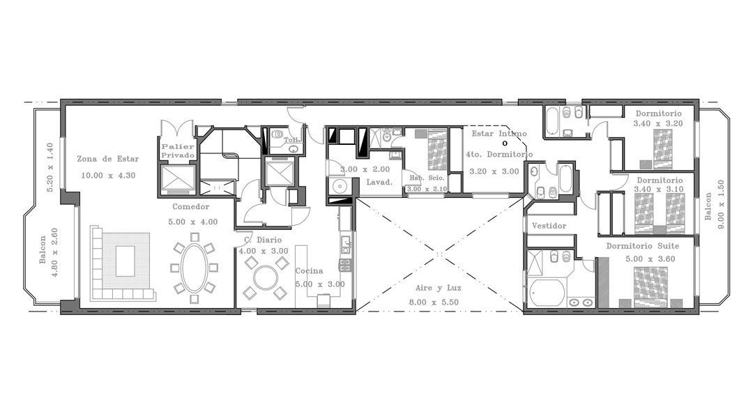
El edificio se desarrolla en 15 pisos, Planta Baja, y un subsuelo. Cada unidad consta de 4 dormitorios, 2 de ellos en suite, living-comedor, cocina con comedor diario, toilette, y dependencias de servicio, además de dos cocheras y una baulera.
En el piso 13o se ubica una unidad funcional con idénticas características en dúplex, y que posee además un playroom que balconea al living con entrada independiente desde la calle.
En el piso 14o se ubican las bauleras y la portería,
El edificio se desarrolla en 15 pisos, Planta Baja, y un subsuelo. Cada unidad consta de 4 dormitorios, 2 de ellos en suite, living-comedor, cocina con comedor diario, toilette, y dependencias de servicio, además de dos cocheras y una baulera.
En el piso 13o se ubica una unidad funcional con idénticas características en dúplex, y que posee además un playroom que balconea al living con entrada independiente desde la calle.
En el piso 14o se ubican las bauleras y la portería, mientras que en el 15o piso se encuentra el salón de fiestas del edificio. En la planta baja y 1er. subsuelo se proyectaron un total de 24 cocheras.
Vivienda Multifamiliar
Superficie 5.800 m2
Año 1991

