Flores - CABA
Bacacay 3051
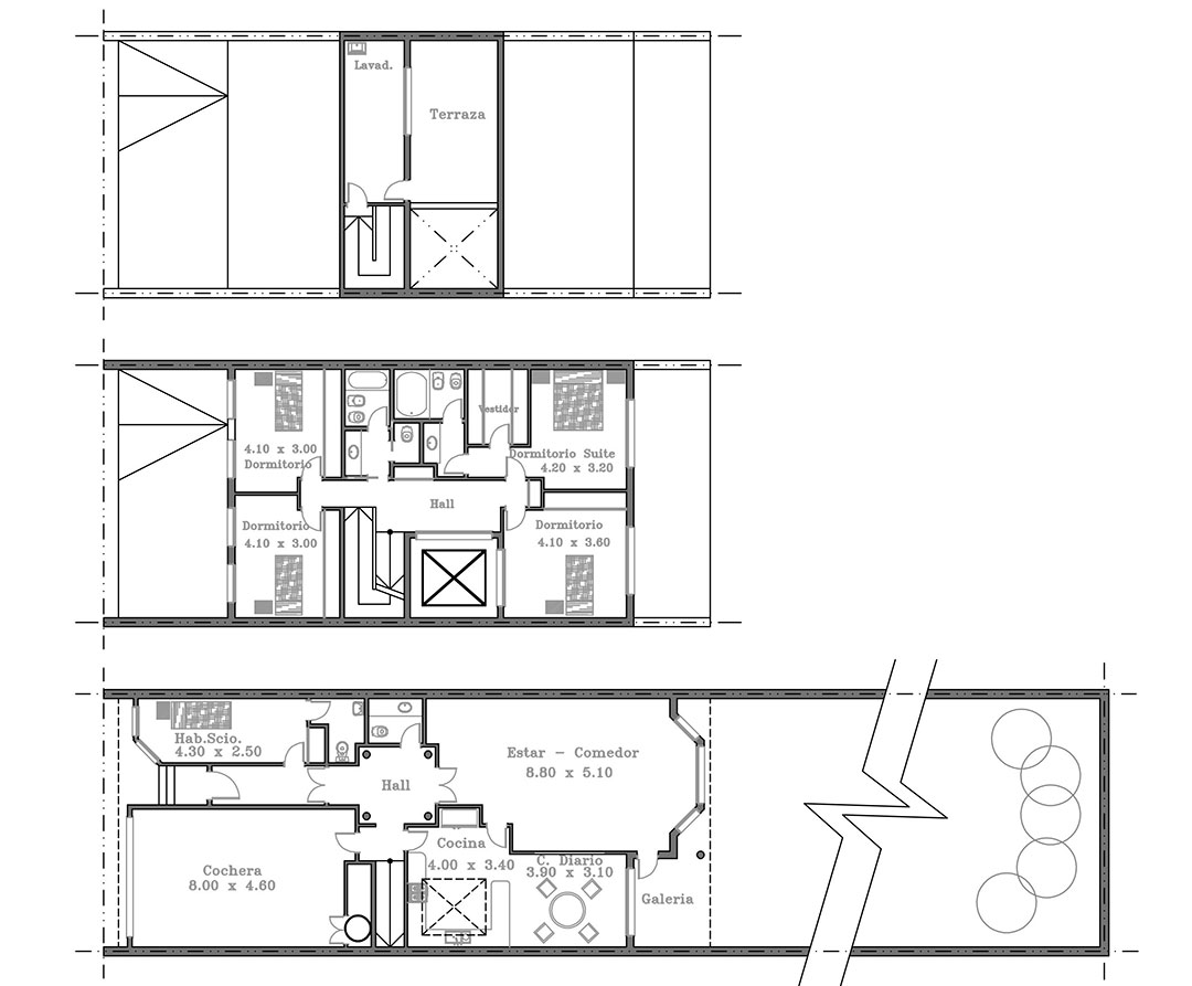
El proyecto de 290 m2 se desarrolla en 3 plantas, tratando de dejar el mayor terreno libre posible, aprovechando que el terreno tiene un fondo muy grande, donde poder ubicar en el futuro una pileta.
La casa cuenta en planta alta con cuatro dormitorios, uno de ellos con baño en suite y vestidor, un baño compartimentado para el resto de los dormitorios.
En la planta baja se ubica el living al contrafrente,
El proyecto de 290 m2 se desarrolla en 3 plantas, tratando de dejar el mayor terreno libre posible, aprovechando que el terreno tiene un fondo muy grande, donde poder ubicar en el futuro una pileta.
La casa cuenta en planta alta con cuatro dormitorios, uno de ellos con baño en suite y vestidor, un baño compartimentado para el resto de los dormitorios.
En la planta baja se ubica el living al contrafrente, al igual que la cocina-c. diario, para permitir que tengan una buena expansión.
La cocina cuenta además con iluminación cenital a través de una gran claraboya que le otorga luz natural durante todo el día.
El dormitorio de servicio se ubicó en un lateral del frente, mientras que del otro lado, formando un zaguán, se ubicó una cochera para dos autos.
Vivienda Unifamiliar
Superficie 290 m2
Año 1988
