Flores - CABA
Gavilán 417/421
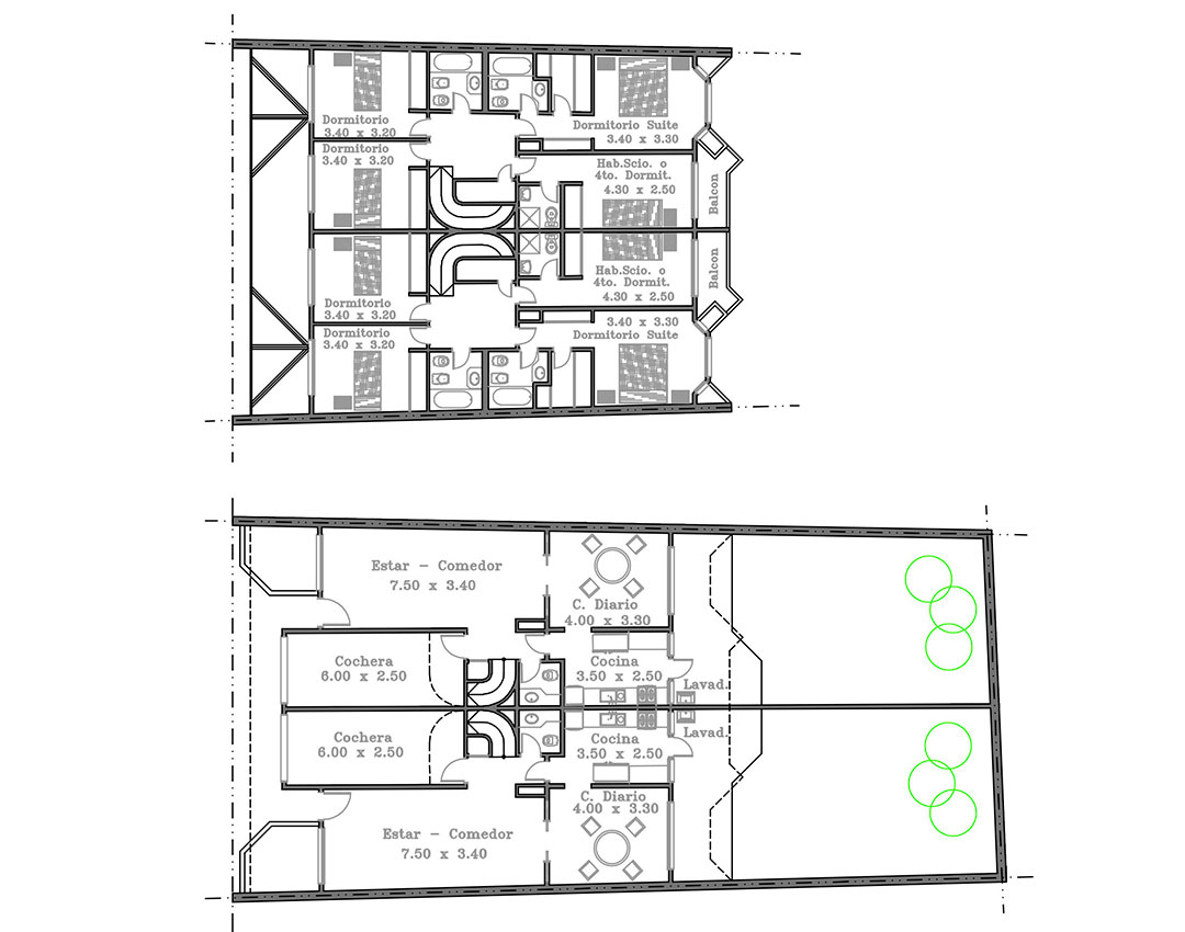
El proyecto consta de 2 dúplex simétricos desarrollados en 2 plantas, en un terreno de 12.71 mts. de frente por 26.00 mts de fondo aproximadamente.
En planta baja se proyectó la cochera cubierta, placard de recepción, living-comedor, c.diario, cocina, toilette, y lavadero, dejando el mayor fondo posible parquizado.
En la planta alta se proyectaron 2 dormitorios con un baño, una suite con vestidor y baño, y un 4to. dormitorio o hab.
El proyecto consta de 2 dúplex simétricos desarrollados en 2 plantas, en un terreno de 12.71 mts. de frente por 26.00 mts de fondo aproximadamente.
En planta baja se proyectó la cochera cubierta, placard de recepción, living-comedor, c.diario, cocina, toilette, y lavadero, dejando el mayor fondo posible parquizado.
En la planta alta se proyectaron 2 dormitorios con un baño, una suite con vestidor y baño, y un 4to. dormitorio o hab. de servicio con un baño.
Vivienda Multifamiliar
Superficie 330 m2
Año 1987
