Flores - CABA
Goya 556
El proyecto de 252 m2 se desarrolla en 3 plantas, tratando de dejar la mayor superficie posible para las actividades en los espacios abiertos, ya que el terreno tiene un fondo reducido.
La casa cuenta con 4 dormitorios, uno de ellos con baño en suite y vestidor, un baño compartimentado para el resto de los dormitorios.
En la planta baja se ubica el living al frente, una cochera, la cocina y comedor diario,
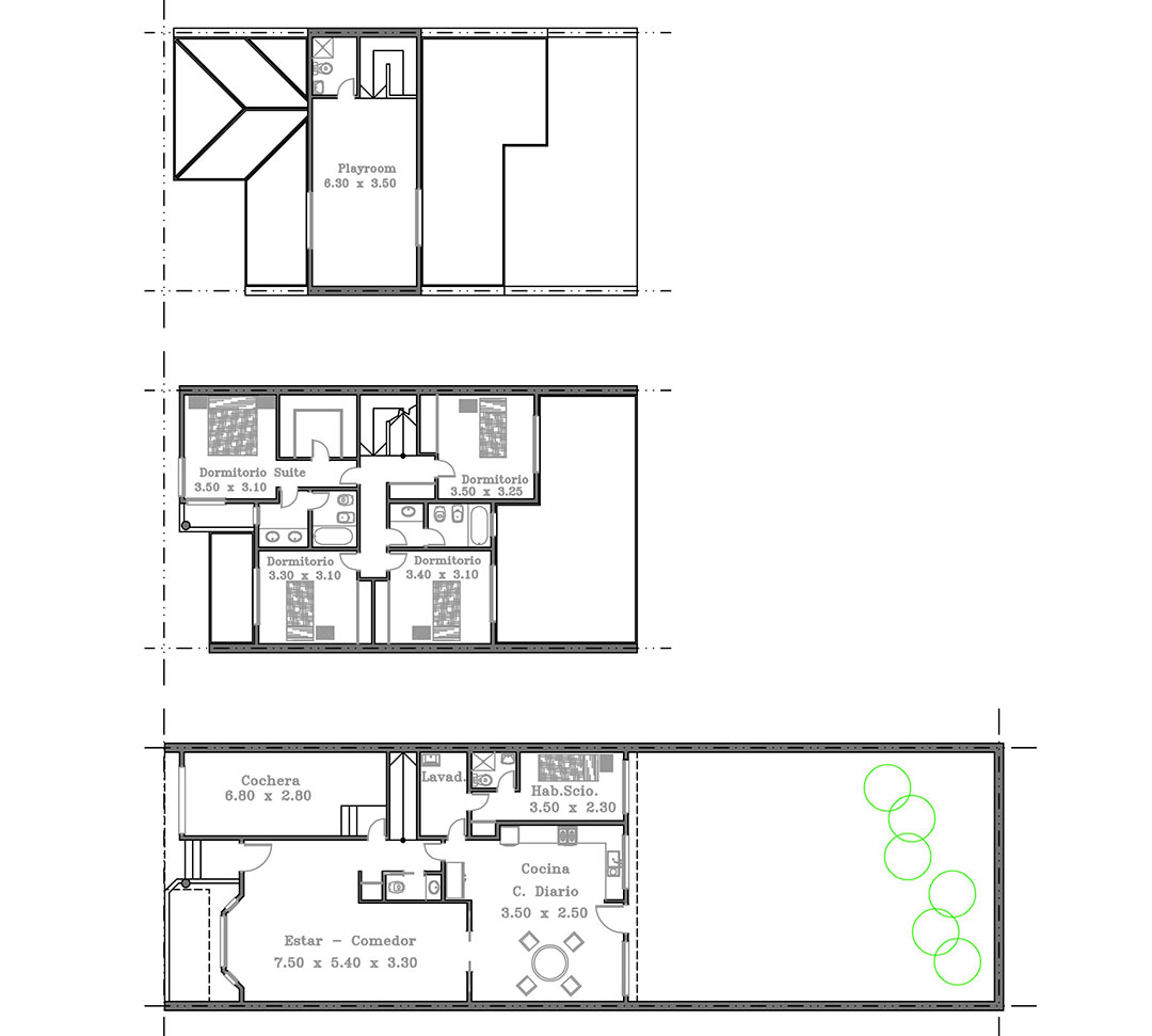
El proyecto de 252 m2 se desarrolla en 3 plantas, tratando de dejar la mayor superficie posible para las actividades en los espacios abiertos, ya que el terreno tiene un fondo reducido.
La casa cuenta con 4 dormitorios, uno de ellos con baño en suite y vestidor, un baño compartimentado para el resto de los dormitorios.
En la planta baja se ubica el living al frente, una cochera, la cocina y comedor diario, lavadero, y la habitación de servicio con su correspondiente baño.
En la planta superior se proyectó un espacio de uso múltiple (playroom) con un baño para su uso exclusivo.
Vivienda Unifamiliar
Superficie 252 m2
Año 1987
