Villa Urquiza - CABA
Pacheco 3143
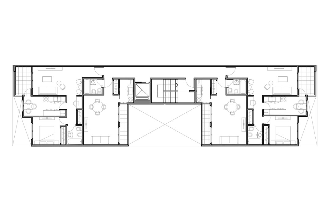
El proyecto tiene las características de una propiedad horizontal convencional, con la diferencia de haber sido evitada la portería, lo que redunda en una reducción importante de las expensas. El proyecto cuenta con unidades de 1 y 2 ambientes entre del 1o al 3o piso, mientras que en el 4o se desarrollaron 2 unidades de 3 ambientes.
En la planta baja se ubicaron las 8 cocheras y las salas de servicios generales y de ascensor,
El proyecto tiene las características de una propiedad horizontal convencional, con la diferencia de haber sido evitada la portería, lo que redunda en una reducción importante de las expensas. El proyecto cuenta con unidades de 1 y 2 ambientes entre del 1o al 3o piso, mientras que en el 4o se desarrollaron 2 unidades de 3 ambientes.
En la planta baja se ubicaron las 8 cocheras y las salas de servicios generales y de ascensor, con un óptimo aprovechamiento de la superficie.
Vivienda Multifamiliar
Superficie 1.132 m2
Año 2010



