Villa Urquiza - CABA
Pacheco 3167
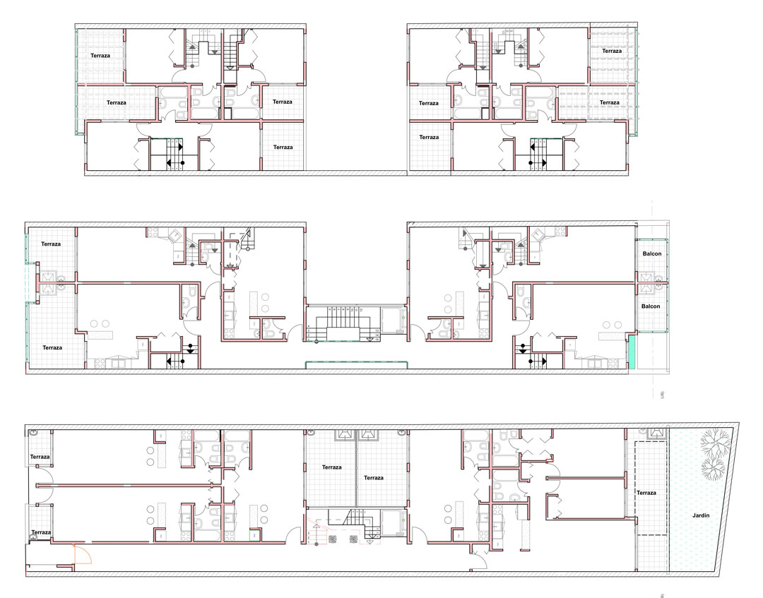
El proyecto fué concebido como unidades tipo PH de principio de siglo XX, pero con una modernizada imagen. Para evitar el uso de ascensor, se desarrollaron unidades de 2 y 3 ambientes en dúplex en el 1ro. y 2do piso, mientras que las unidades de la planta baja se desarrollaron 4 monoambientes y un 3 ambientes en un sólo nivel. Continuando con esta idea, la cubierta está realizada con techo de tejas, pero con piezas hechas en cemento color gris,
El proyecto fué concebido como unidades tipo PH de principio de siglo XX, pero con una modernizada imagen. Para evitar el uso de ascensor, se desarrollaron unidades de 2 y 3 ambientes en dúplex en el 1ro. y 2do piso, mientras que las unidades de la planta baja se desarrollaron 4 monoambientes y un 3 ambientes en un sólo nivel. Continuando con esta idea, la cubierta está realizada con techo de tejas, pero con piezas hechas en cemento color gris, que confiere al edificio una imagen de modernidad.
Se ha evitado la incorporación del encargado ni su vivienda.
Vivienda Multifamiliar
Superficie 765 m2
Año 2009
















