Belgrano - CABA

Quesada 2382

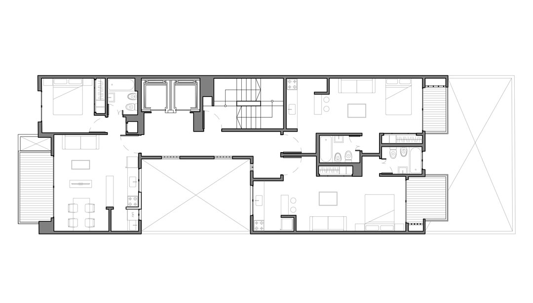
El proyecto se desarrolla en planta baja y 10 pisos. En la planta baja se han localizado 6 cocheras y algunos servicios centrales. En la planta tipo se ubicaron 2 monoambientes al contrafrente, y un 2 ambientes al frente con un amplio balcón y cocina integrada.

La portería se localizó en el piso 10, mientras que en el 11o se encuentran la sala de máquinas de ascensor y la sala de termotanques para el agua caliente central.

El proyecto se desarrolla en planta baja y 10 pisos. En la planta baja se han localizado 6 cocheras y algunos servicios centrales. En la planta tipo se ubicaron 2 monoambientes al contrafrente, y un 2 ambientes al frente con un amplio balcón y cocina integrada.

La portería se localizó en el piso 10, mientras que en el 11o se encuentran la sala de máquinas de ascensor y la sala de termotanques para el agua caliente central.

Vivienda Multifamiliar
Superficie 1.950 m2
Año 2011